Thông tin dự án:
- Chủ đầu tư: Anh Hà Huy Nam
- Địa chỉ: Quận 11, TP. Hồ Chí Minh
- Quy mô công trình: 4 tầng + 1 tum
- Đơn vị thiết kế: Kiến Trúc Thành Phát
- Hotline tư vấn thiết kế miễn phí: 0979.747.856
Thiết kế mặt tiền 3D – Hiện đại và đẳng cấp
Mặt tiền ngôi nhà được thiết kế theo phong cách hiện đại, kết hợp các đường nét tối giản với chất liệu cao cấp, tạo nên một diện mạo sang trọng và nổi bật. Với kiến trúc 5 tầng 1 tum, công trình thể hiện được chiều cao lý tưởng và sự bề thế giữa lòng đô thị.


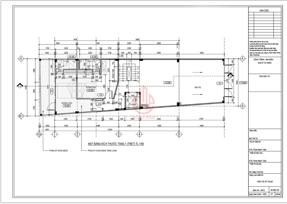
Mặt bằng tầng trệt – Không gian tiếp khách và nghỉ ngơi riêng biệt
Công năng:
- Sân trước
- Phòng khách lớn
- Thang máy
- 2 phòng ngủ có WC riêng
- Toilet phụ
Không gian tầng trệt được tính toán tỉ mỉ: Phòng khách được đặt ở vị trí trung tâm, rộng rãi và tinh tế, tạo sự thoáng đãng và hiện đại. Hai phòng ngủ riêng tư tích hợp WC bên trong, đảm bảo tiện nghi. Tất cả các không gian đều được bố trí hợp lý nhằm tối ưu hóa thông gió và ánh sáng tự nhiên.

Mặt bằng kích thước tầng 1
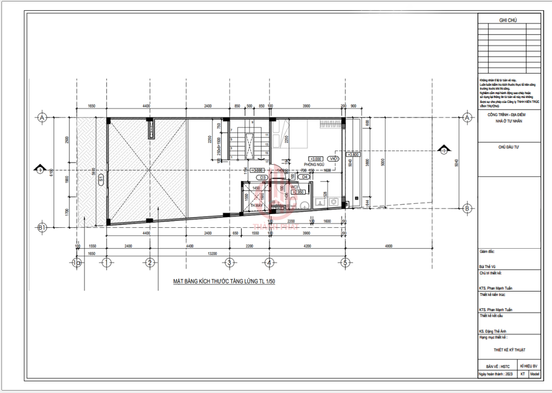
Tầng lửng – Tạo nên điểm nhấn với công năng linh hoạt
Công năng:
- 1 phòng ngủ tiện nghi
- 1 WC
- Khu bếp và ăn
Tầng lửng mang đến một không gian sống riêng biệt và ấm cúng. Phòng ngủ lớn được thiết kế để đảm bảo sự riêng tư và thoải mái. Khu bếp được tích hợp khéo léo, tận dụng không gian hiệu quả mà vẫn đầy đủ chức năng.

Mặt bằng kích thước tầng lửng
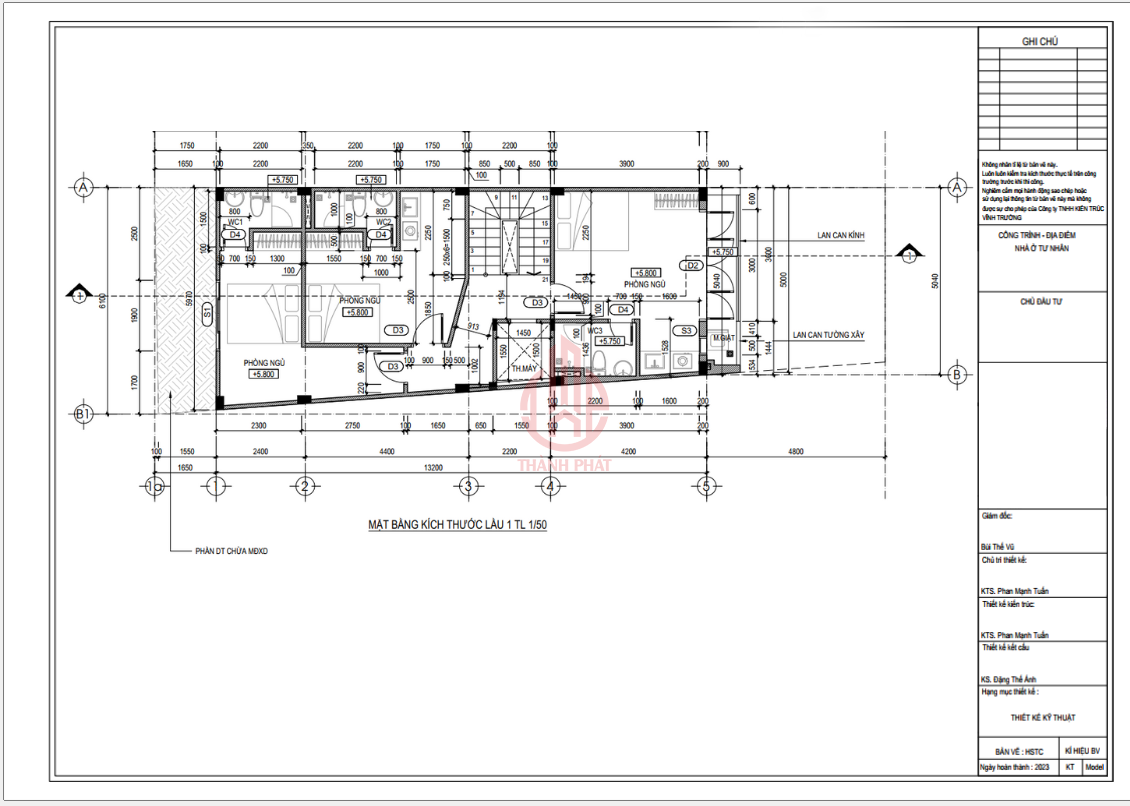
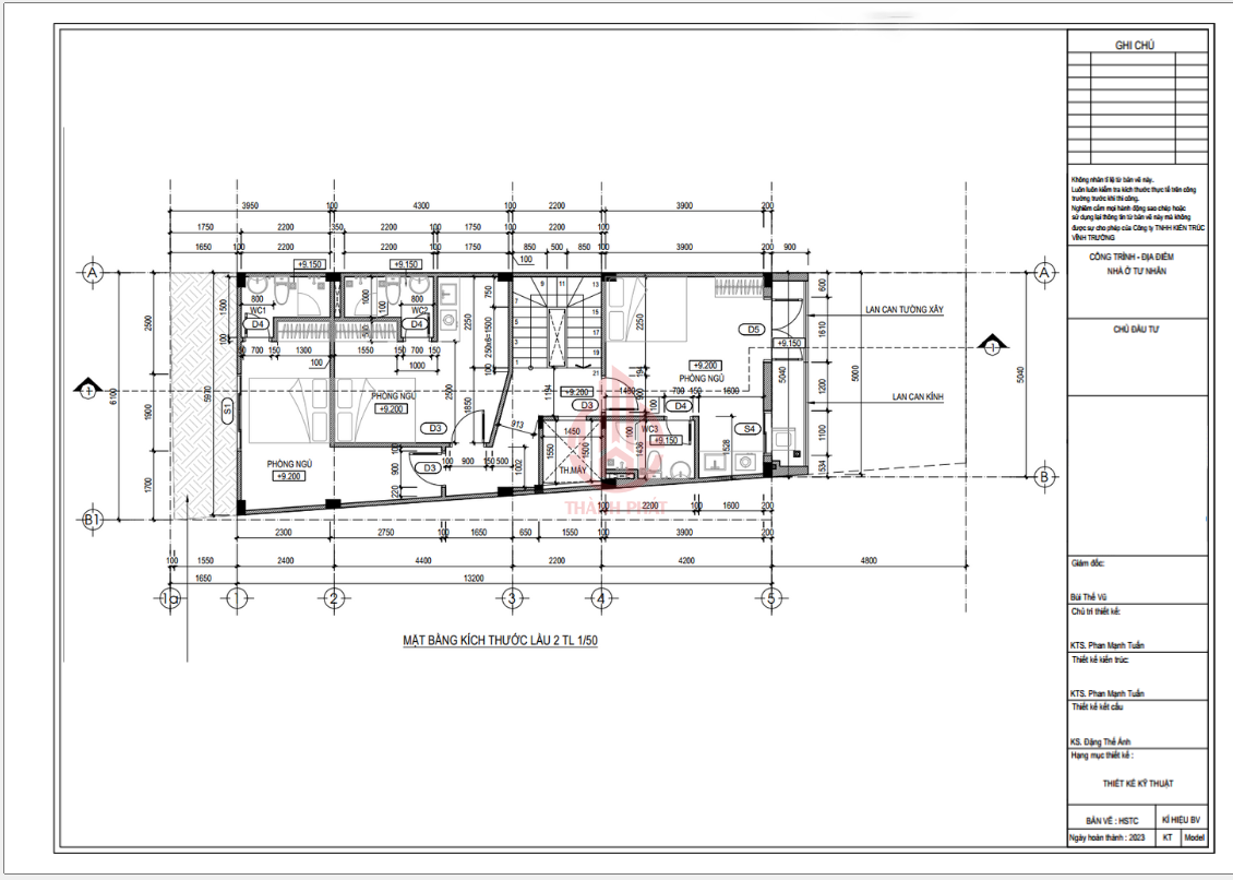
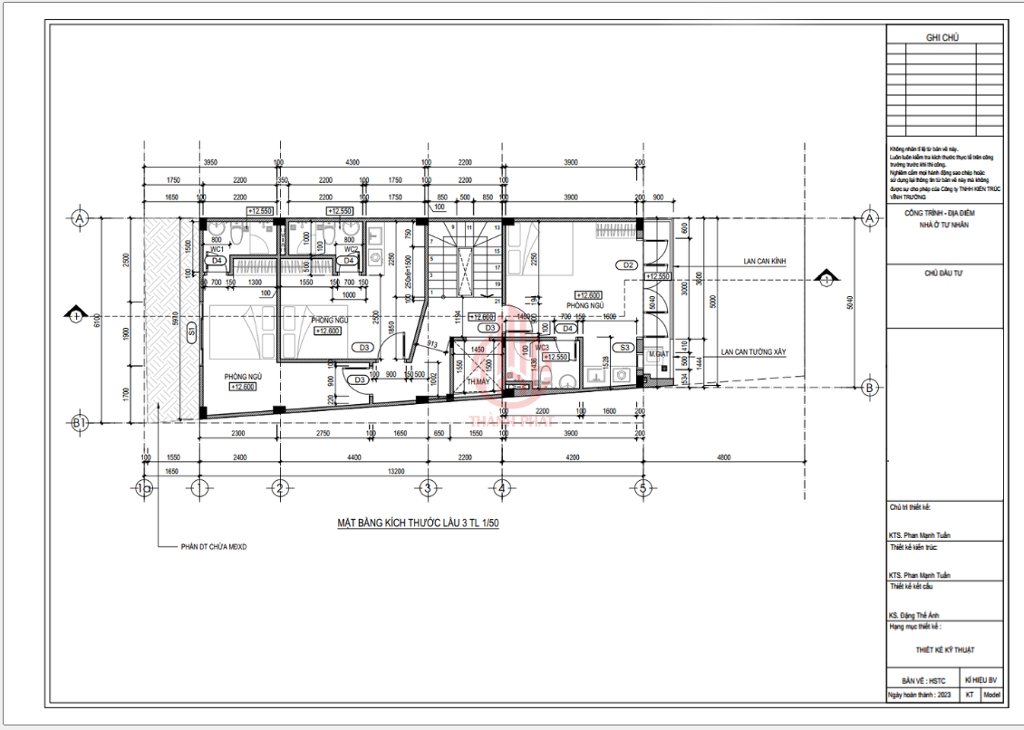
Tầng 1, 2, 3 – Tối ưu cho gia đình đông người hoặc cho thuê
Mỗi tầng gồm:
- 3 phòng ngủ
- 3 toilet riêng
- 2 khu bếp
- Ban công thoáng mát phía trước
Thiết kế lặp lại thông minh cho các tầng giúp dễ dàng điều chỉnh theo nhu cầu: vừa ở, vừa cho thuê. Mỗi phòng ngủ đều có không gian mở, lấy sáng tốt, hệ thống thông gió khoa học giúp không khí luôn trong lành.

Mặt bằng kích thước lầu 1

Mặt bằng kích thước lầu 2

Mặt bằng kích thước lầu 3
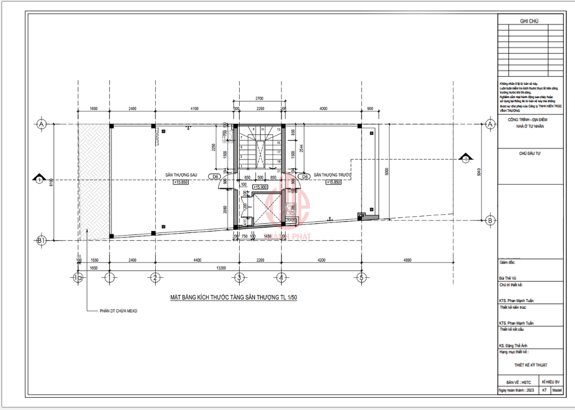
Tầng thượng – Không gian thư giãn và sinh thái trong lành
Công năng:
- Sân thượng trước: Nơi lý tưởng cho không gian ngoài trời – có thể bố trí bàn ghế, khu BBQ, tổ chức tiệc tùng hoặc nghỉ ngơi thư giãn.
- Sân thượng sau: Thiết kế như một khu vườn treo nhỏ với cây xanh, hoa lá hoặc rau sạch. Đây là không gian thư thái để thiền, hít thở khí trời hoặc ngắm hoàng hôn mỗi chiều.

Mặt bằng kích thước sân thượng
Ánh sáng tự nhiên được tận dụng tối đa, kết hợp với cảnh quan xanh tạo nên một tầng thượng đáng mơ ước.
Với mẫu thiết kế nhà phố 5 tầng 1 tum này, Kiến Trúc Thành Phát không chỉ đem đến một không gian sống hiện đại mà còn là giải pháp tối ưu cho gia đình đông người, kinh doanh kết hợp cho thuê hoặc nghỉ dưỡng tại nhà.
Bạn đang tìm kiếm một thiết kế nhà phố tối ưu và thẩm mỹ? Gọi ngay 0979.747.856 để được tư vấn thiết kế MIỄN PHÍ và nhận báo giá xây dựng nhà tại TP.HCM & các tỉnh miền Nam.











Giám Đốc Trần Ngọc Nghị
Ông Trần Ngọc Nghị hiện là Giám Đốc Công Ty Tư Vấn Thiết Kế Xây Dựng & Nội Thất Thành Phát Building. Với kinh nghiệm và tâm huyết trong lĩnh vực thiết kế – xây dựng, Ông cùng đội ngũ kiến trúc sư, kỹ sư tài năng đã kiến tạo hàng trăm công trình nhà ở, biệt thự, nhà phố đẳng cấp, mang đến sự hài lòng và tin tưởng tuyệt đối cho khách hàng.