Thông tin dự án:
- Chủ đầu tư: Chị Ngọc
- Địa chỉ: Huyện Củ Chi, TP. Hồ Chí Minh
- Diện tích xây dựng: 9m × 8,8m (81m²/sàn)
- Quy mô công trình: Nhà phố 2 tầng
- Đơn vị thiết kế: Kiến Trúc Thành Phát
- Hotline tư vấn miễn phí: 0979.747.856
Thiết kế mặt tiền 3D – Đơn giản, hiện đại và hài hòa với cảnh quan
Ngôi nhà mang vẻ ngoài thanh lịch với các đường nét kiến trúc hiện đại, màu sắc trung tính hài hòa và cách phối vật liệu khéo léo, tạo nên một tổng thể tinh tế nhưng không kém phần nổi bật.

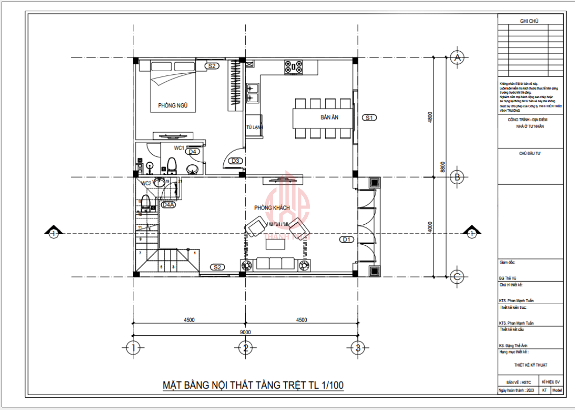
Mặt bằng tầng trệt – Không gian sống mở, tiện nghi tối đa
Công năng sử dụng:
- 1 phòng khách
- 1 phòng ngủ master có WC riêng
- Bếp ăn hiện đại
- 2 WC (gồm 1 WC dưới cầu thang)
Với diện tích 81m², tầng trệt được thiết kế thông minh theo phong cách mở, giúp liên kết không gian giữa phòng khách và bếp, tạo cảm giác rộng rãi và thoáng đãng. Phòng ngủ lớn có WC khép kín mang đến sự riêng tư và tiện nghi cho gia chủ.
Điểm nhấn: KTS đã khéo léo bố trí WC dưới gầm cầu thang – giải pháp thiết kế tiết kiệm diện tích mà vẫn đảm bảo tính thẩm mỹ và công năng sử dụng.

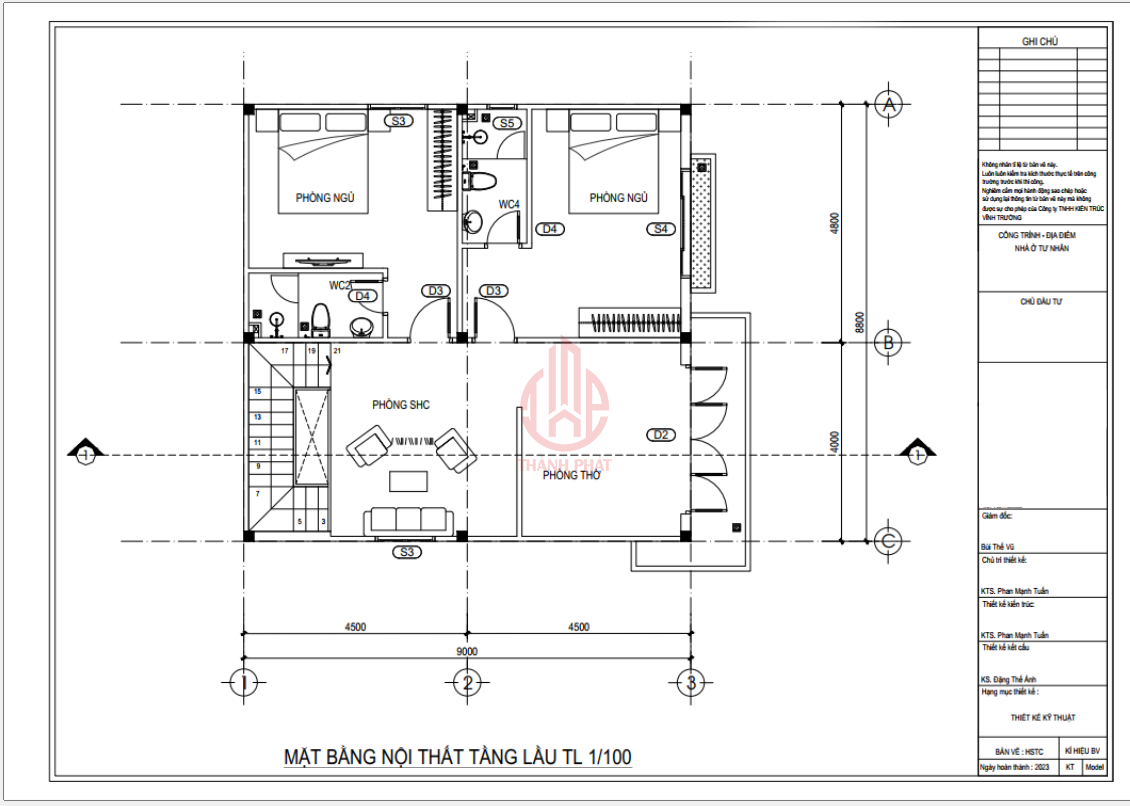
Mặt bằng tầng lầu – Không gian nghỉ ngơi & sinh hoạt gia đình
Công năng tầng lầu:
- 2 phòng ngủ
- 2 WC riêng
- 1 phòng thờ
- Ban công rộng
Tầng lầu được tổ chức hợp lý, với 2 phòng ngủ có WC khép kín, đảm bảo sự riêng tư cho từng thành viên. Phòng thờ được đặt tại vị trí trang trọng, mang đến sự yên tĩnh và linh thiêng.

Đặc biệt: Không gian sinh hoạt chung tại tầng lầu có thể được sử dụng như phòng khách thứ hai, rất thích hợp cho các buổi tụ họp gia đình hoặc tiếp khách thân quen.
Với diện tích chỉ 9×8,8m, mẫu nhà phố 2 tầng này là sự kết hợp hoàn hảo giữa công năng tiện ích – không gian tối ưu – thiết kế thẩm mỹ hiện đại. Phù hợp với gia đình từ 4–6 thành viên và có thể điều chỉnh linh hoạt theo nhu cầu sử dụng.
Bạn đang lên kế hoạch xây nhà trong năm nay? Liên hệ ngay với Kiến Trúc Thành Phát qua số 0979.747.856 để được tư vấn thiết kế miễn phí, lên phương án mặt bằng phù hợp và nhận báo giá xây dựng mới nhất tại TP.HCM và các tỉnh miền Nam.











Giám Đốc Trần Ngọc Nghị
Ông Trần Ngọc Nghị hiện là Giám Đốc Công Ty Tư Vấn Thiết Kế Xây Dựng & Nội Thất Thành Phát Building. Với kinh nghiệm và tâm huyết trong lĩnh vực thiết kế – xây dựng, Ông cùng đội ngũ kiến trúc sư, kỹ sư tài năng đã kiến tạo hàng trăm công trình nhà ở, biệt thự, nhà phố đẳng cấp, mang đến sự hài lòng và tin tưởng tuyệt đối cho khách hàng.